Xiao Tea House 晓茶馆
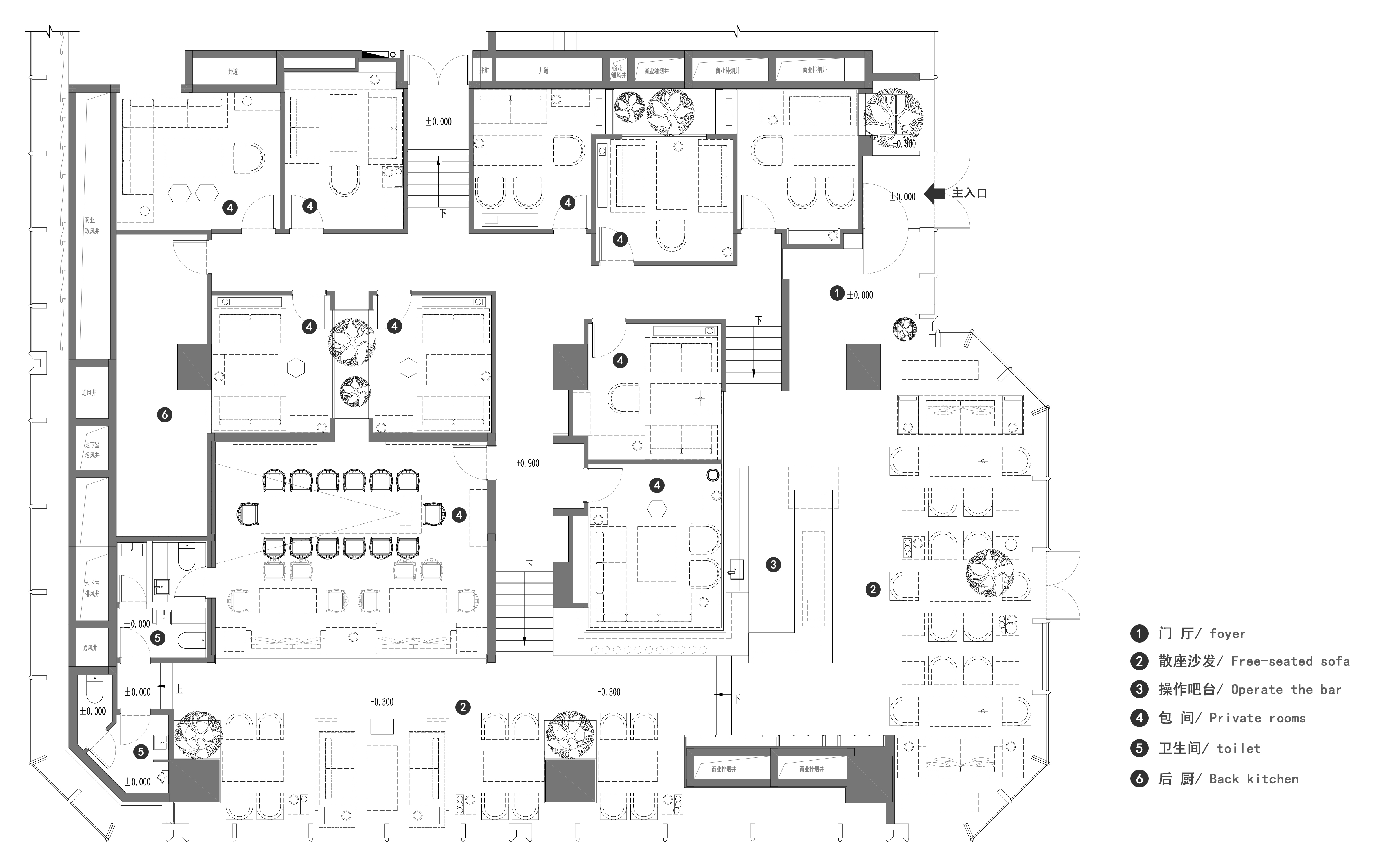
由郭莘空间设计工作室设计的晓·茶馆位于商业综合体一栋建筑的顶层,由于错叠的关系,中心商场的屋顶花园天然地成为项目的“户外庭院”,环绕屋顶花园的商业空间相对较少,植物繁茂,原场地层高较高,南面和西面有着通透的视野,当视线望向南边,那一棵由古观音禅寺的银杏树转译而来的“生命之树”,带给我们的不仅是风景,更是项目的设计灵感来源。
The Xiao·Tea House, designed by Guo Xin Space Design Studio, is located on the top floor of a building within a commercial complex. Due to its staggered arrangement, the rooftop garden of the central shopping mall naturally serves as the project's "outdoor courtyard". The commercial space surrounding the rooftop garden is relatively limited, with lush vegetation. The original site has a high ceiling, offering panoramic views to the south and west. When gazing south, the "Tree of Life" transformed from the ginkgo tree of the Ancient Guanyin Temple brings us not only scenery but also serves as the inspiration for the project's design.
