Johnson & Johnson Gubei Garden 强生古北花园
在居住设计的语境里,错层空间始终是一道充满挑战的命题。
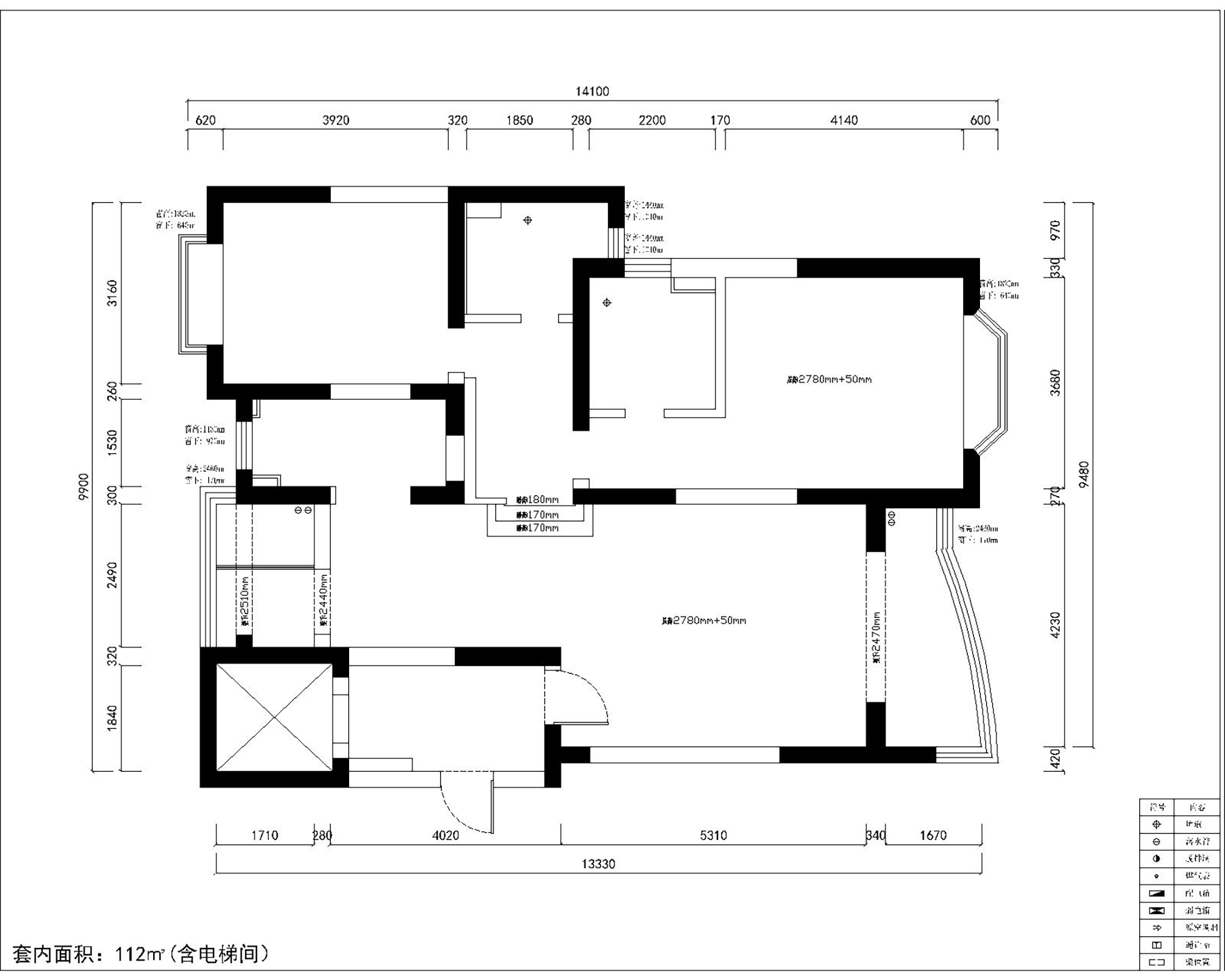
如何在高低错落的结构中平衡功能与美学?怎样让不同高度的区域既独立成趣,又能形成流畅的生活动线?这套中古风错层住宅,给出了兼具温度与巧思的解答。这处为新婚夫妇量身定制的居所,用「解构传统」的设计哲学,编织出休闲、工作、娱乐共融的三维生活图景。设计师以「重塑洄游动线」、「垂直空间扩容」、「中古风韵渗透」为三大核心,从电梯间开始规划全屋储物系统,通过半开放式餐厨、双结构楼梯、阳台功能重构等设计,让每个角落都成为生活的舞台。
In the context of residential design, split-level space is always a challenging proposition.
How to balance function and aesthetics in a staggered structure? How to make the areas of different heights both independent and interesting, and form a smooth flow of life? This medieval split-level house gives an answer that combines temperature and ingenuity. Tailored for newlyweds, this residence uses a design philosophy of "deconstructing tradition" to weave a three-dimensional picture of leisure, work and entertainment. With the three cores of "reshaping the migration line", "vertical space expansion" and "medieval charm penetration", the designer plans the whole house storage system from the elevator room, and makes every corner a stage for l
