Metaphor Of Courtyard 庭院之喻
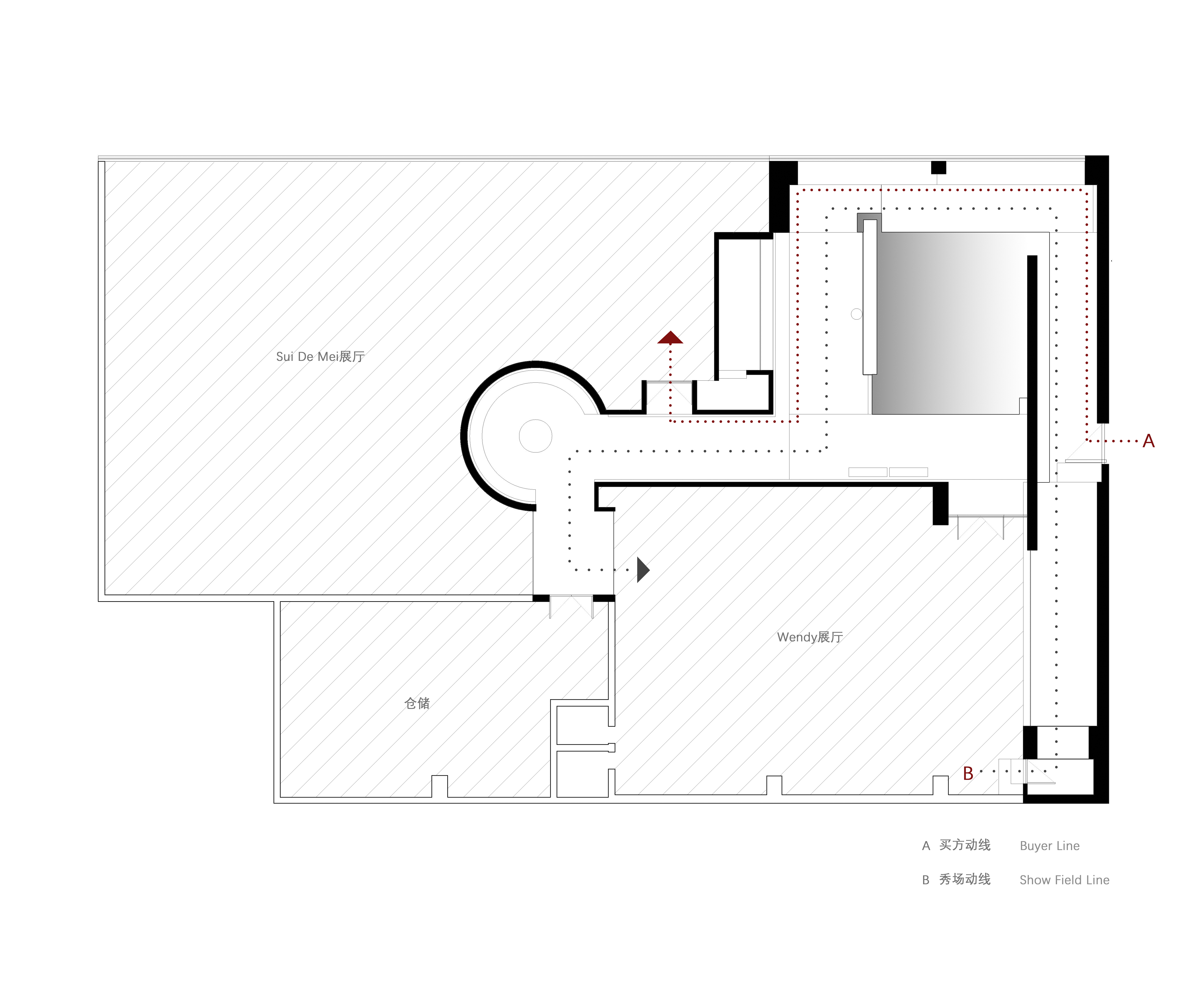
项目位于一座工厂内,为家居服品牌穗得美×Wendy&co两个展厅的公共区域设计。该公区不仅串联起两个品牌展厅的动线,还承担着“沙龙活动、秀场、接待”等对外功能。
设计以“意象的庭院”为主题,通过纯粹的几何构造与自由流动的空间形态,创造出一种半透明的状态,蕴含未知性与探索感。点与线的对照关系,引申出画面的无限感,使空间在三维中不断延伸,最终聚焦于一个视觉中心。
在空间布局上,中庭成为核心意象,通过静态的“黑镜”材质与动态的屏幕投影,结合自然光的映射,形成“湖面水平入镜,微风吹来,碧波荡漾”的意境。这种虚实交织的手法,不仅让观者产生与外部世界的联想,还使作品在现实与观念之间呼吸,摒弃了直白的表达,营造出一种朦胧而深邃的美学体验。材料的选择与光影的运用,进一步强化了空间的层次感与流动性,使功能性与艺术性达到微妙平衡。
The project is located within a factory and is designed for the public areas of the two showrooms of the home wear brand Suidemei and Wendy&co.
The design takes "The Courtyard of Imagery" as its theme, creating a semi-transparent state through pure geometric construction and freely flowing spatial forms, embodying the unknown and a sense of exploration.
