THE UNRESTRICTED INTEREST IN LIFE 不设限的生活乐趣
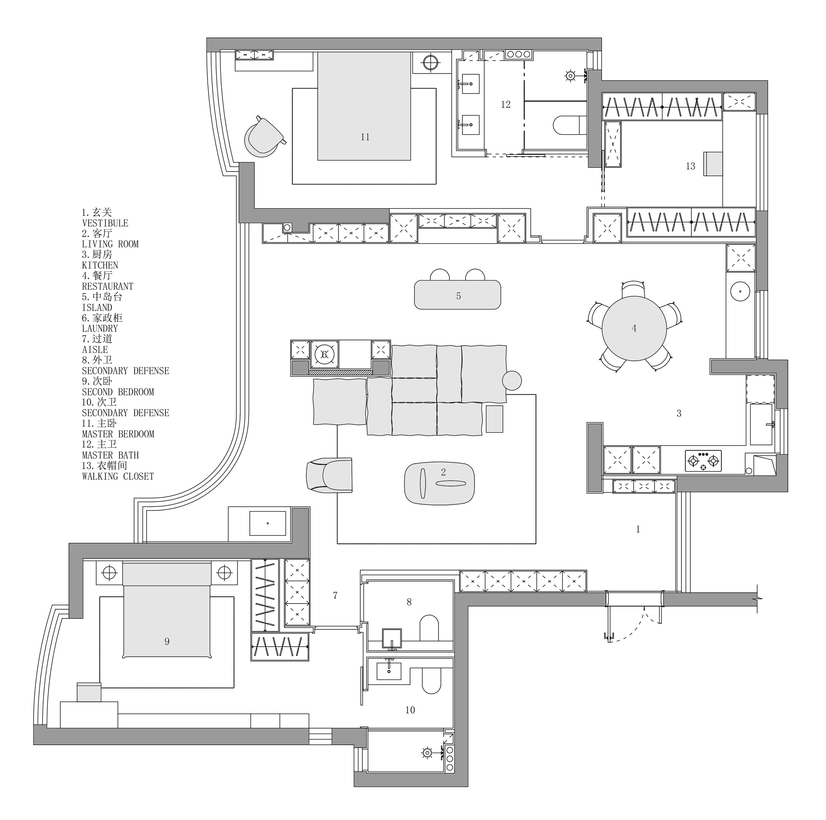
本案作为业主婚房,汇入对未来家的期待与畅想。双主卧皆为套房布局,分列东西两侧,享充足光照。客厅、餐厨、岛台各自洄游,贯穿交流场域,基于自由开阔的尺度,布局动线、收纳与生活场景的关联,开启一场不设限的居家命题。浓郁的秋冬色系与原木结构互为渲染,岛屿式沙发搭配轻巧灵动的家具,随性组合移动,增强空间的社交属性,释放场域包容感。电视机柜下方嵌入蒸汽壁炉,可导入香薰,雾化至整个空间,通过感官传递独有的印记与熟悉感,凝聚出家的具象形态。设计基于长期主义的需求优化收纳系统,分别在电视机柜、餐厅、岛台区域分散式布局储物空间。不仅参与了隐形的场域划分,同时为不同功能区、不同物品的归类提供便捷性,并长远考虑了未来孩子大量的收纳需求,确保公共区的整洁度。木作结构从玄关延伸入里,经体块错落穿插,制造出斜向切面,温润之中亦能触及线条的张弛与生动。指引不同区域贯穿、互通,探索场域的无限可能。岛台、客厅联动洄游,通过递进的秩序关系,打破功能分界,散射更多维度的交流空间。
This case, as the owner's wedding home, embodies the expectations and visions for the future home. Both master bedrooms are in suite layout, located on the east and west sides, enjoying abundant natural light. The living room, dining room and kitchen, and island counter each flow in their own direction, connecting the communication area. Based on the free and open scale, the layout of the circulation, storage and the connection with the living scene, initiates an unrestricted home theme. The rich autumn and winter color schemes and the original wood structure complement each other. The island-style sofa paired with the light and dynamic furniture enhances the social attribute of the space and releases a sense of inclusiveness in the area.
