Villa J 简宅
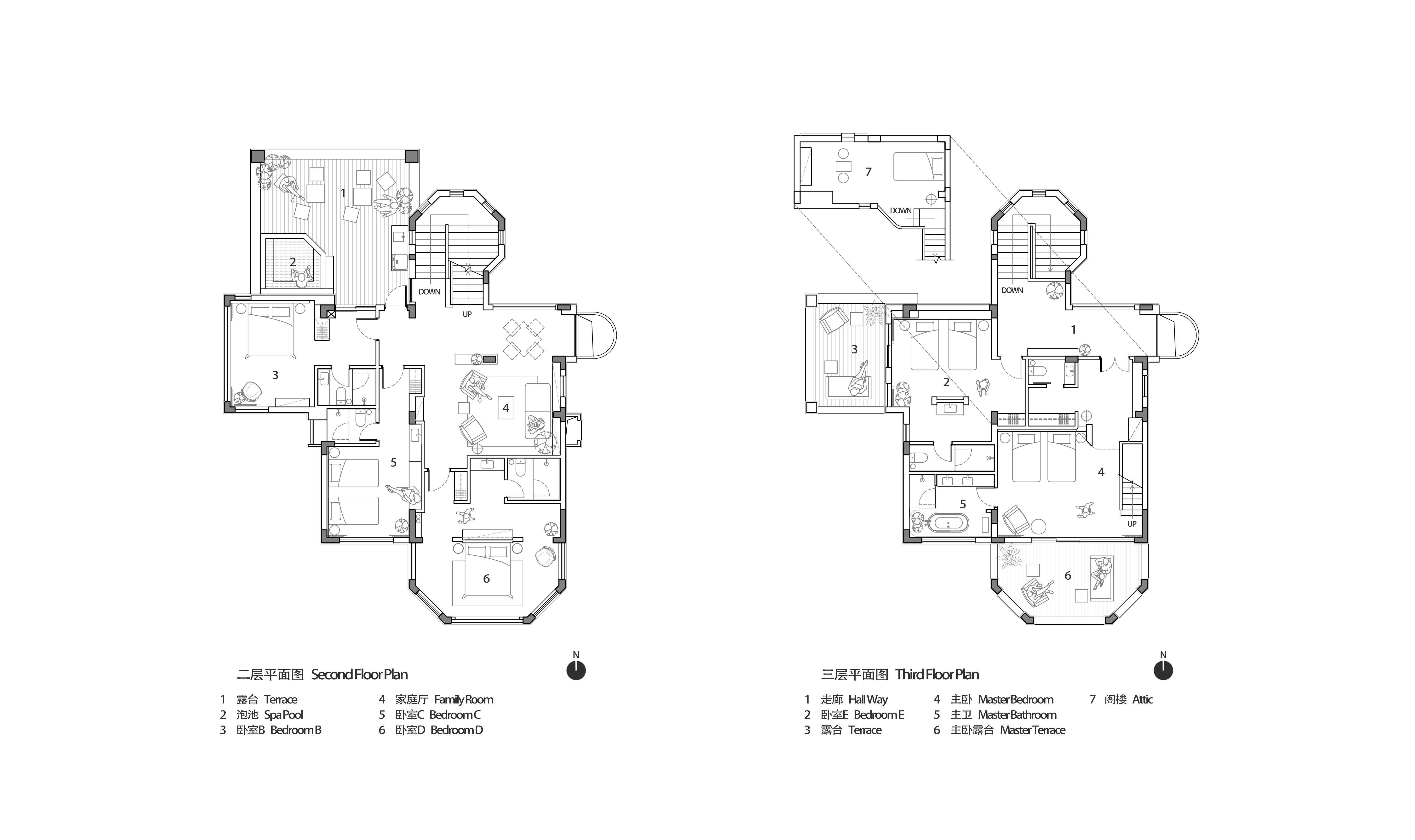
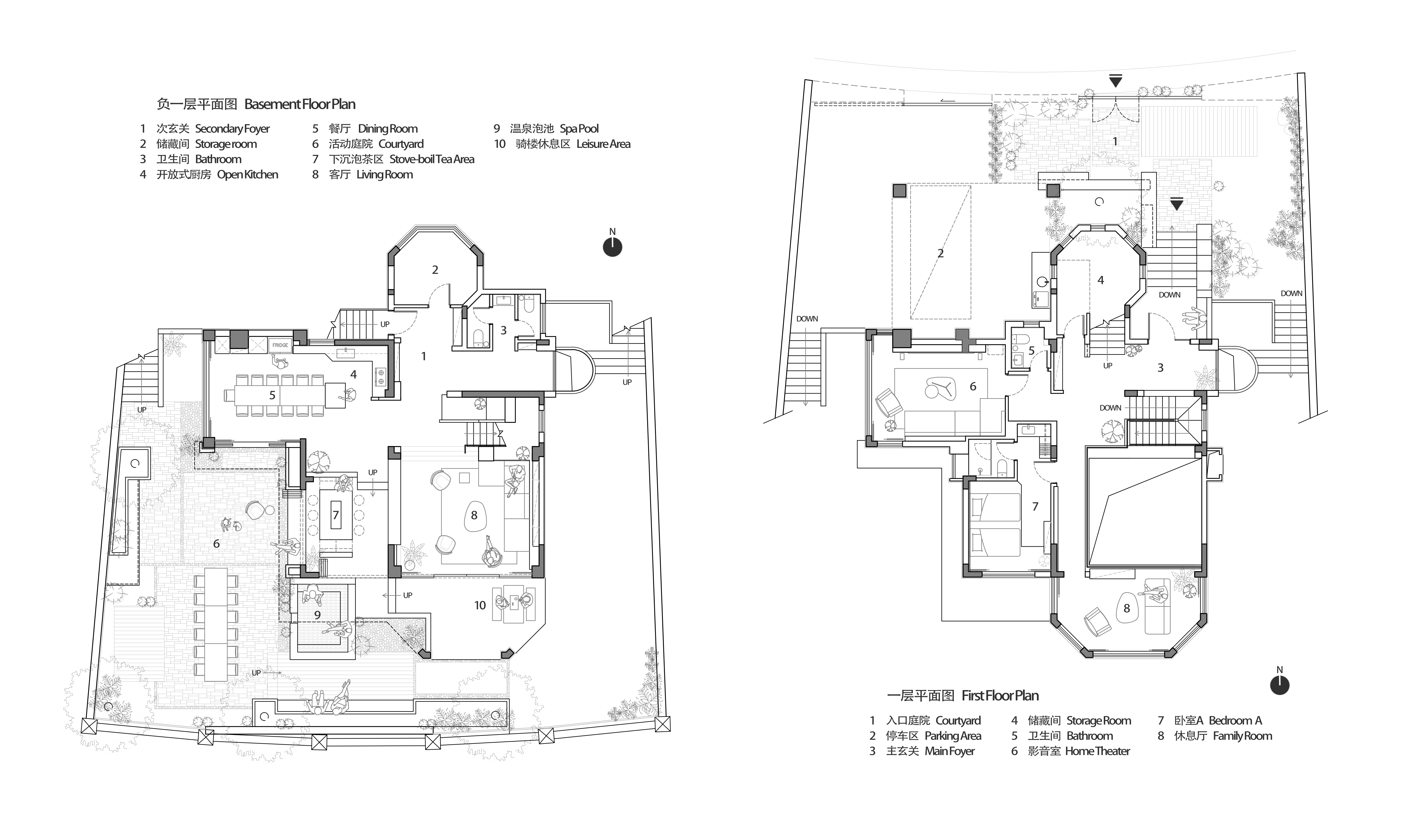
项目为近郊的一栋温泉别墅,是业主为家人打造的度假居所。业主希望让入住者获得与自然更亲近的体验,享受度假氛围的同时也能让人们在真实的交互中增进亲情和友情。设计以自在、松弛、交流为理念,将休憩的场景融入每一处空间。通高的负一楼客厅在打破室内外界限的同时为上下层的人提供更多的交互机会。客厅边下沉泡茶区与户外温泉泡池和院子紧密相连,即便喜好不同,大家也能找到各自享受的一角,却又能瞥见家人的身影或隔空互唤一声。一楼的小休息厅和二楼的家庭厅提供了小聚活动的场所。顶楼的卧室还带有供孩子玩耍的阁楼。不同尺度的空间极大丰富了每个人的选择:或亲近自然,或享受相聚,亦或感受平静。自然的材质配合移步易景的体验,享受有别于城市生活的空间诗意。
This suburban hot spring villa is a family retreat designed to strengthen bonds through nature and shared interaction. The design prioritizes freedom, ease, and connectivity. A double-height living room erases interior and exterior boundaries, while encouraging visual exchange between floors. An adjacent sunken tea area opens to the hot spring and garden, offering individual retreat without isolation. Intimate lounges on the first and second floors provide gathering spaces, and top-floor bedrooms include child-friendly lofts. The varied areas accommodate engagement with nature, social connection, or solitude. Natural materials and layered views compose a tranquil escape from urban routine.
