Baihua Bookstore at the China Kunqu Opera Museum  中国昆曲博物馆-百花书局
百花书局曾是中国昆曲博物馆的“最后一个展厅”,亦是苏州最早的一批书局之一,却因年久失修逐渐沦为出口通道。青天制作所通过轻量、嵌入式、可再书写的空间结构,使其重回博物馆文化生态,转型为具备文化生产能力的“书店+”模式新节点。
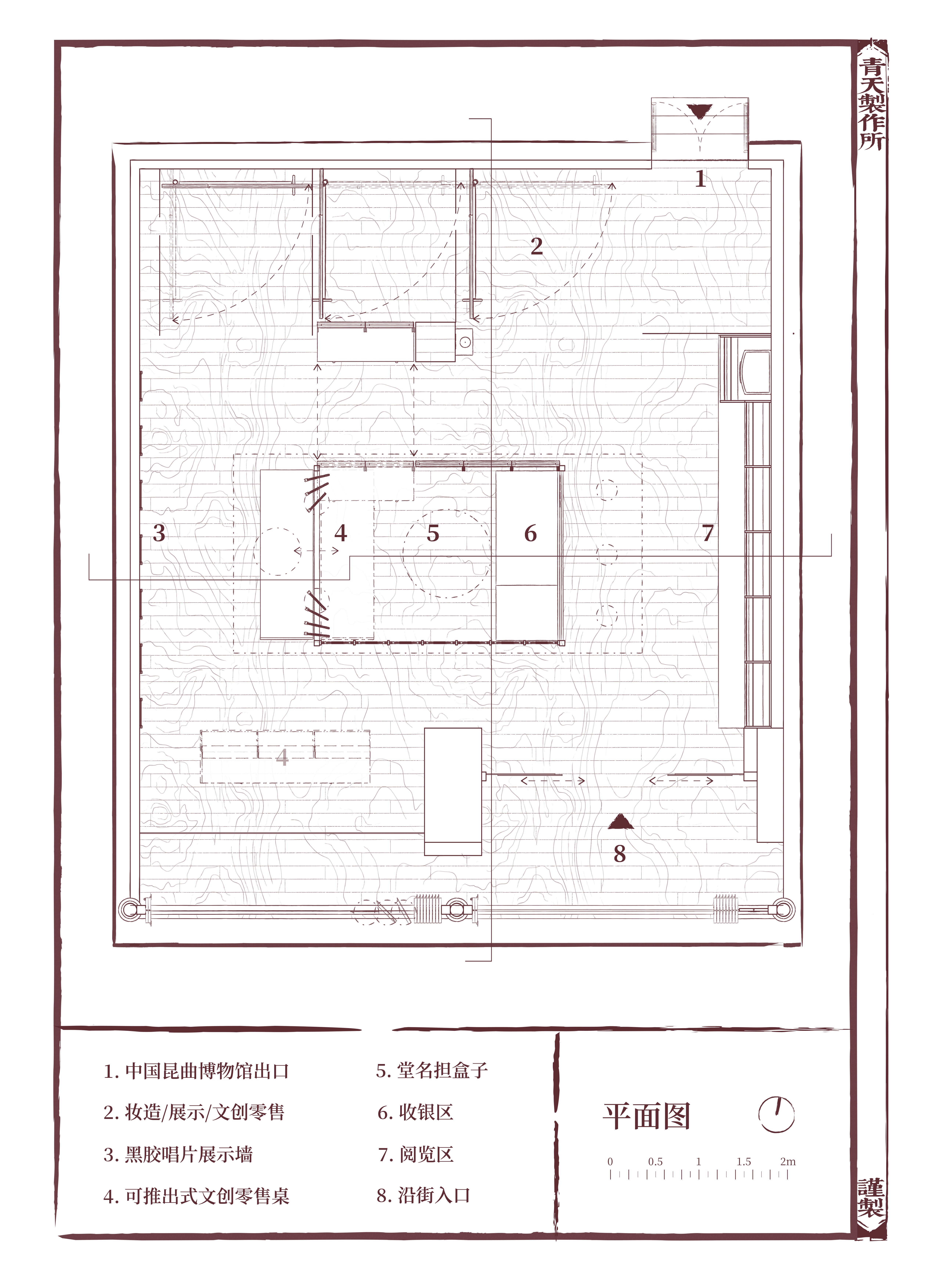
设计灵感源自昆曲传统便携戏台“堂名担”,将其轻巧、可拆合、可移动演出的舞台机制转译为中心装置——一个不足 7 平方米的嵌入式微型剧场。结合可移动展陈、模块化导视与伸缩帷幕,空间可在书店、剧场、展览与社区活动等多种功能间自由切换。
材料在传统与当代之间建立可感知的连接:回收木门经炭化处理,保留原雕花窗板,南立面穿孔图案源自堂名担的几何节奏。项目不仅重塑了空间的文化身份,也探索了社区语境下非遗教育的可持续路径与边缘公共空间的再生潜力。
Located in the China Kunqu Opera Museum, Baihua Bookstore began as a reading room but had faded into an exit corridor. Guided by minimal intervention, spatial adaptability, and cultural translation, Tsing-Tien Making reimagined it through the Tangmingdan, a traditional portable Kunqu stage, creating a flexible cultural venue. A central pavilion with varied façades integrates movable displays, modular signage, and retractable curtains, enabling the space to shift into a micro-stage for events. Reclaimed wood and patterns from the Tangmingdan bridge past and present, while supports sustainability. This lightweight renewal reactivates cultural identity and offers a sustainable model for intangible heritage education in a community context.
